Вентилятор радиальный тягодутьевый ТДРВ-90-60
Описание
- Тягодутьевые радиальные вентиляторы среднего и высокого давления
- Предназначены для:
- для использования в качестве дымососов на газомазутных котлах с уравновешенной тягой
Конструктив
- Корпус в виде улитки
- Конструктивные исполнения по ГОСТ 5976: 1, 3, 5
- Левое (Л) или правое (Пр) направление вращения рабочего колеса/положение корпуса
- Угол поворота корпуса вентилятора: 0°, 45°, 90°, 135°, 270°, 315°
- Рабочее колесо с загнутыми вперед лопатками
- Материалы корпуса и рабочего колеса зависят от исполнения
Двигатель
- Трехфазный асинхронный электродвигатель
- Степень защиты электродвигателя не ниже IP 54
Условия эксплуатации
- Климатическое исполнение по ГОСТ 15150-69: У2 (для эксплуатации под навесом). Допускается эксплуатация в У1 (на открытом воздухе) при комплектации кожухом электродвигателя или двигателем У1
- Температура окружающей среды от -45°С до +40°С
Таблица исполнений
|
Исполнение |
Температура перемещаемой среды, °С |
Материал |
Назначение |
Маркировка взрывозащиты* |
Группы взрывоопасной среды |
Классы взрывоопасных зон помещения |
|
Общепромышленное О |
от -45 до +80 |
Оцинкованная/ Углеродистая сталь |
Для перемещения воздуха и других газопаровоздушных смесей |
- |
- |
- |
|
Теплостойкое Т200 |
от -45 до +200 |
Оцинкованная/ Углеродистая сталь |
Для перемещения воздуха и других газопаровоздушных смесей,с максимальной температурой до +200 °С |
- |
- |
- |
|
Коррозионностойкое теплостойкое К1Т200 |
от -45 до +200 |
Нержавеющая сталь |
Для перемещения агрессивных невзрывоопасных воздушных смесей |
- |
- |
- |
|
Коррозионностойкое К1 |
от -45 до +80 |
- |
- |
- |
||
|
Взрывозащищенное Ex1 |
от -45 до +80 |
Углеродистая/ оцинкованная сталь, латунь |
Для применения в потенциально взрывоопасной газовой среде категорий IIА, IIВ, IIС (кроме взрывоопасных смесей с воздухом: коксового газа категории IIВ группы Т1; окиси пропилена, окиси этилена, формальдегида, этилтрихлорэтилена, этилена категории IIВ группы Т2; винилтрихлорсилена, этилхлорсилена категории IIB группы Т3) |
1Ех h IIС Т4 Gb Х 1Ех h IIВ Т4 Gb Х |
Т4 |
1 и 2 |
|
Взрывозащищенное теплостойкое Ex1Т200 |
от -45 до +200 |
Углеродистая/ оцинкованная сталь, латунь |
1Ех h IIС Т2 Gb Х 1Ех h IIВ Т2 Gb Х |
Т2 |
1 и 2 |
|
|
Взрывозащищенное коррозионностойкое ExК1 |
от -45 до +80 |
Нержавеющая сталь/ латунь |
1Ех h IIС Т4 Gb Х 1Ех h IIВ Т4 Gb Х |
Т4 |
1 и 2 |
|
|
Взрывозащищенное коррозионностойкое теплостойкое ExК1Т200 |
от -45 до +200 |
Нержавеющая сталь/ латунь |
1Ех h IIС Т2 Gb Х 1Ех h IIВ Т2 Gb Х |
Т2 |
1 и 2 |
* Подгруппа газа IIC или IIB зависит от подгруппы газа применяемого комплектующего оборудования (электродвигателя).
Перемещаемая среда не должна содержать:
- липких веществ, волокнистых материалов, пыли и других твердых примесей в концентрации более 600 г/м3;
- взрывоопасных веществ под избыточным давлением или нагревающихся выше температуры их самовоспламенения;
- пары и газы, вызывающие ускоренную коррозию материалов и покрытий указанных исполнений.
Для изделий из нержавеющей стали (К1) не допускается контакт с сильными восстановителями (щелочи), сильными окислителями (кислоты) и морской водой.
** Вентиляторы конструктивного исполнения 5 не изготавливаются в исполнении Ex (Ex1, ExК1, Ex1Т200, ExК1Т200).
Дополнительная комплектация

1 - Вставка гибкая прямоугольная ВГП-ТДРВ 90-60
2 - Вставка гибкая круглая ВГК-ТДРВ 90-60
3 - Кожух ЭД-ТДРВ 90-60
4 - Виброизоляторы
* Дополнительные комплектующие в комплект поставки не входят.
Полная информация о вентиляторах ТДРВ 90-60 в электронном pdf-каталоге по ссылке во вкладке "Характеристики".
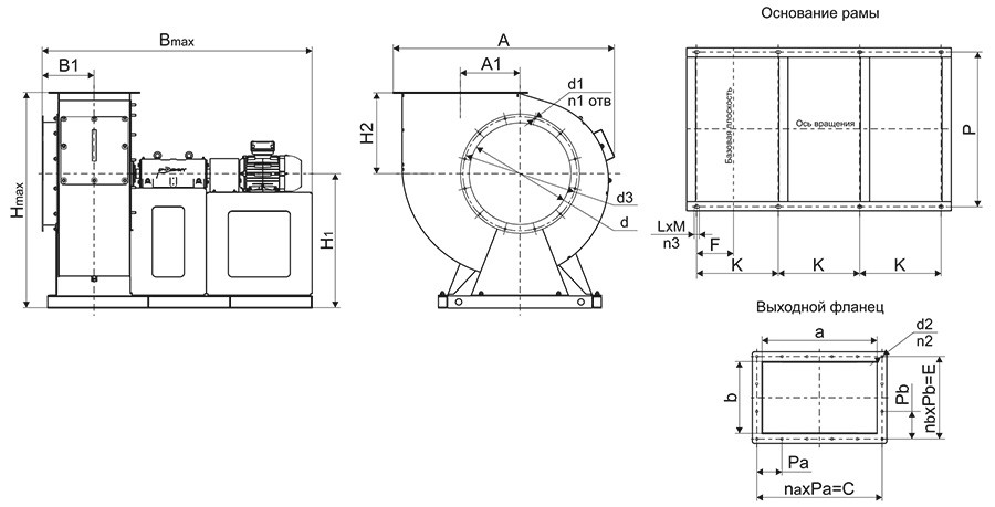
Габаритные и присоединительные размеры ТДРВ 90-60 без ОНА (мм). Исполнение 1

|
№ вент |
a |
b |
C |
E |
Pa |
Pb |
na |
nb |
n2 |
d2 |
d |
d3 |
d1 |
n1 |
H1 |
H2 |
H max |
B max |
B1 |
A |
A1 |
F |
K |
N |
n3 |
P |
L |
M |
|
2,24 |
224 |
139 |
270 |
180 |
- |
- |
- |
- |
8 |
7 |
213 |
225 |
7 |
8 |
310 |
190 |
500 |
480 |
164 |
495 |
145 |
75 |
168 |
335 |
6 |
258 |
40 |
8 |
|
2,5 |
250 |
155 |
290 |
190 |
145 |
95 |
2 |
2 |
8 |
10 |
224 |
253 |
7 |
8 |
336 |
205 |
541 |
500 |
172 |
520 |
132 |
64 |
166 |
332 |
6 |
292 |
20 |
10 |
|
2,8 |
280 |
174 |
324 |
216 |
108 |
108 |
3 |
2 |
10 |
10 |
250 |
289 |
10 |
8 |
366 |
208 |
574 |
539 |
181 |
565 |
146 |
59 |
183 |
366 |
6 |
330 |
30 |
10 |
|
3,15 |
315 |
195 |
360 |
230 |
120 |
115 |
3 |
2 |
10 |
10 |
280 |
309 |
10 |
8 |
422 |
250 |
672 |
586 |
192 |
635 |
164 |
94 |
215 |
430 |
6 |
364 |
20 |
10 |
|
3,55 |
355 |
220 |
405 |
260 |
135 |
130 |
3 |
2 |
10 |
10 |
315 |
349 |
10 |
8 |
472 |
275 |
747 |
605 |
204 |
710 |
185 |
126 |
234 |
468 |
6 |
416 |
20 |
10 |
|
4,0 |
400 |
248 |
440 |
285 |
110 |
95 |
4 |
3 |
14 |
10 |
355 |
384 |
11 |
8 |
518 |
297 |
815 |
735 |
218 |
754 |
208 |
99 |
280 |
560 |
6 |
472 |
24 |
12 |
|
4,5 |
450 |
285 |
520 |
345 |
130 |
115 |
4 |
3 |
14 |
12 |
400 |
434 |
11 |
8 |
570 |
327 |
897 |
840 |
234 |
895 |
225 |
154 |
340 |
680 |
6 |
538 |
24 |
12 |
|
5,0 |
500 |
310 |
575 |
375 |
115 |
125 |
5 |
3 |
16 |
12 |
450 |
479 |
12 |
8 |
622 |
370 |
992 |
875 |
250 |
980 |
264 |
156 |
358 |
716 |
6 |
594 |
24 |
12 |
|
5,6 |
560 |
347 |
625 |
405 |
125 |
135 |
5 |
3 |
16 |
12 |
500 |
534 |
12 |
16 |
682 |
405 |
1087 |
815 |
269 |
1085 |
292 |
176 |
323 |
646 |
6 |
670 |
24 |
12 |
|
6,3 |
627 |
385 |
660 |
424 |
165 |
128 |
5 |
4 |
20 |
12 |
560 |
589 |
12 |
16 |
754 |
455 |
1209 |
920 |
291 |
1215 |
328 |
196 |
367 |
733 |
6 |
758 |
24 |
12 |
|
7,1 |
710 |
440 |
780 |
504 |
130 |
126 |
6 |
4 |
20 |
12 |
630 |
665 |
12 |
16 |
886 |
505 |
1391 |
1080 |
346 |
1365 |
369 |
218 |
428 |
856 |
6 |
840 |
28 |
14 |
|
8,0 |
800 |
496 |
875 |
560 |
125 |
140 |
7 |
4 |
22 |
12 |
710 |
739 |
11 |
16 |
979 |
570 |
1549 |
1231 |
404 |
1459 |
400 |
209 |
500 |
1000 |
6 |
966 |
28 |
14 |
|
9,0 |
900 |
558 |
976 |
625 |
122 |
125 |
8 |
5 |
26 |
12 |
800 |
829 |
12 |
16 |
1080 |
630 |
1710 |
1425 |
435 |
1700 |
475 |
278 |
598 |
1196 |
6 |
1068 |
28 |
14 |
|
10,0 |
1000 |
620 |
1080 |
690 |
135 |
138 |
8 |
5 |
26 |
14 |
900 |
938 |
15 |
16 |
1182 |
695 |
1877 |
1515 |
466 |
1885 |
503 |
278 |
622 |
1244 |
6 |
1190 |
36 |
18 |
|
11,2 |
1120 |
694 |
1206 |
768 |
134 |
128 |
9 |
6 |
30 |
14 |
1000 |
1030 |
15 |
16 |
1304 |
770 |
2074 |
1560 |
505 |
2095 |
585 |
345 |
663 |
1325 |
6 |
1248 |
36 |
18 |
Габаритные и присоединительные размеры ТДРВ 90-60 без ОНА (мм). Исполнение 3

|
№ вент |
a |
b |
C |
E |
Pa |
Pb |
na |
nb |
n2 |
d2 |
d |
d3 |
d1 |
n1 |
H1 |
H2 |
H max |
B max |
B1 |
A |
A1 |
F |
K |
n3 |
P |
L |
M |
|
5,6 |
560 |
347 |
625 |
405 |
125 |
135 |
5 |
3 |
16 |
12 |
500 |
534 |
12 |
16 |
682 |
405 |
1087 |
1340 |
269 |
1085 |
292 |
176 |
394 |
8 |
670 |
24 |
12 |
|
6,3 |
630 |
391 |
708 |
452 |
118 |
115 |
6 |
4 |
20 |
12 |
560 |
589 |
12 |
16 |
754 |
455 |
1209 |
1490 |
291 |
1215 |
329 |
196 |
434 |
8 |
758 |
24 |
12 |
|
7,1 |
710 |
440 |
780 |
504 |
130 |
126 |
6 |
4 |
20 |
12 |
630 |
665 |
12 |
16 |
886 |
505 |
1391 |
1785 |
346 |
1365 |
370 |
218 |
506 |
8 |
840 |
28 |
14 |
|
8,0 |
800 |
496 |
875 |
560 |
125 |
140 |
7 |
4 |
22 |
12 |
710 |
739 |
12 |
16 |
978 |
565 |
1543 |
1985 |
404 |
1525 |
417 |
218 |
565 |
8 |
966 |
28 |
14 |
|
9,0 |
900 |
558 |
976 |
625 |
122 |
125 |
8 |
5 |
26 |
12 |
800 |
829 |
15 |
16 |
1080 |
630 |
1710 |
2160 |
435 |
1700 |
469 |
278 |
630 |
8 |
1068 |
28 |
14 |
|
10,0 |
1000 |
620 |
1080 |
690 |
135 |
138 |
8 |
5 |
26 |
14 |
900 |
938 |
15 |
16 |
1182 |
695 |
1877 |
2275 |
466 |
1885 |
521 |
278 |
656 |
8 |
1190 |
36 |
18 |
|
11,2 |
1120 |
694 |
1206 |
768 |
134 |
128 |
9 |
6 |
30 |
14 |
1000 |
1030 |
15 |
16 |
1304 |
770 |
2074 |
2490 |
505 |
2095 |
584 |
345 |
730 |
8 |
1248 |
36 |
18 |
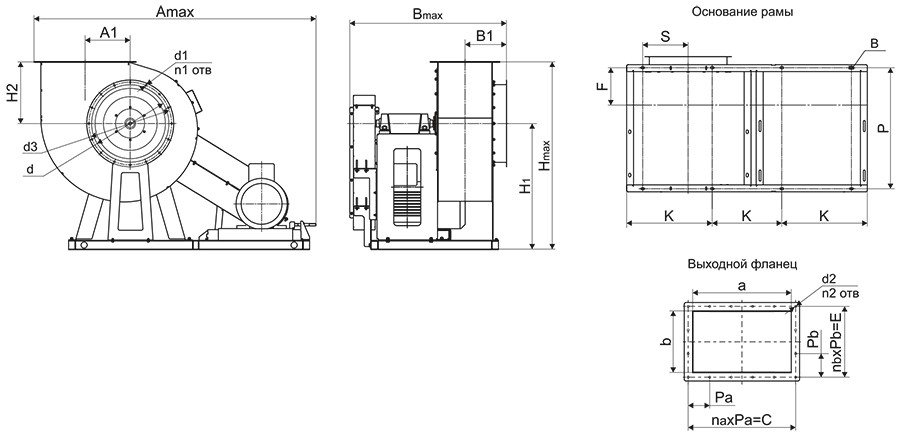
Габаритные и присоединительные размеры ТДРВ 90-60 без ОНА (мм). Исполнение 5

|
№ вент |
a |
b |
C |
E |
Pa |
Pb |
na |
nb |
d |
d1 |
n1 |
d2 |
n2 |
d3 |
n3 |
H1 |
H2 |
H max |
B max |
B1 |
A max |
A1 |
F |
K |
P |
S |
|
5,6 |
560 |
347 |
615 |
405 |
125 |
135 |
5 |
3 |
500 |
12 |
8 |
12 |
16 |
534 |
8 |
815 |
405 |
1220 |
1015 |
269 |
1853 |
292 |
242 |
450 |
782 |
295 |
|
6,3 |
627 |
385 |
660 |
424 |
165 |
128 |
5 |
4 |
560 |
12 |
16 |
12 |
20 |
589 |
8 |
916 |
455 |
1371 |
1100 |
291 |
2082 |
328 |
262 |
505 |
830 |
332 |
|
7,1 |
710 |
440 |
780 |
504 |
130 |
126 |
6 |
4 |
630 |
12 |
16 |
12 |
20 |
665 |
8 |
1035 |
505 |
1540 |
1473 |
346 |
2343 |
369 |
284 |
570 |
994 |
375 |
|
8,0 |
800 |
496 |
875 |
560 |
125 |
140 |
7 |
4 |
710 |
12 |
16 |
12 |
22 |
739 |
8 |
1158 |
565 |
1723 |
1720 |
404 |
2598 |
409 |
284 |
640 |
1050 |
417 |
|
9,0 |
900 |
558 |
976 |
625 |
122 |
125 |
8 |
5 |
800 |
12 |
16 |
12 |
26 |
829 |
8 |
1292 |
630 |
1922 |
1853 |
435 |
3019 |
475 |
344 |
750 |
1263 |
487 |
|
10,0 |
1000 |
620 |
1080 |
690 |
135 |
138 |
8 |
5 |
900 |
15 |
16 |
14 |
26 |
938 |
10 |
1453 |
695 |
2148 |
2180 |
466 |
3198 |
503 |
344 |
790 |
1476 |
517 |
|
11,2 |
1120 |
694 |
1206 |
768 |
134 |
128 |
9 |
6 |
1000 |
15 |
16 |
14 |
30 |
1030 |
10 |
1610 |
770 |
2380 |
2363 |
505 |
3723 |
585 |
411 |
900 |
1731 |
605 |
Технические характеристики ТДРВ 90-60. Исполнение 1
|
Наименование |
Габарит электродвигателей АИР/АИМЛ** |
N, кВт |
n, об/мин |
Ток, А |
Масса, кг |
|
|
двигателя |
колеса |
|||||
|
ТДРВ 90-60-2,24-Х*-1-0,12/1500/220-380 |
56 |
0,12 |
1500 |
0,44 |
24 |
|
|
ТДРВ 90-60-2,24-Х*-1-0,25/3000/220-380 |
56 |
0,25 |
3000 |
0,69 |
24 |
|
|
ТДРВ 90-60-2,24-Х*-1-0,37/3000/220-380 |
63 |
0,37 |
1,01 |
25 |
||
|
ТДРВ 90-60-2,5-Х*-1-0,12/1500/220-380 |
56 |
0,12 |
1500 |
0,44 |
28 |
|
|
ТДРВ 90-60-2,5-Х*-1-0,37/3000/220-380 |
63 |
0,37 |
3000 |
1,01 |
29 |
|
|
ТДРВ 90-60-2,5-Х*-1-0,55/3000/220-380 |
63 |
0,55 |
1,38 |
29 |
||
|
ТДРВ 90-60-2,8-Х*-1-0,12/1500/220-380 |
56 |
0,12 |
1500 |
0,44 |
34 |
|
|
ТДРВ 90-60-2,8-Х*-1-0,55/3000/220-380 |
63 |
0,55 |
3000 |
1,38 |
35 |
|
|
ТДРВ 90-60-2,8-Х*-1-0,75/3000/220-380 |
71 |
0,75 |
1,83 |
45 |
||
|
ТДРВ 90-60-3,15-Х*-1-0,25/1500/220-380 |
63 |
0,25 |
1500 |
0,79 |
43 |
|
|
ТДРВ 90-60-3,15-Х*-1-1,5/3000/220-380 |
80 |
1,5 |
3000 |
3,46 |
55 |
|
|
ТДРВ 90-60-3,15-Х*-1-2,2/3000/220-380 |
80 |
2,2 |
4,85 |
56 |
||
|
ТДРВ 90-60-3,55-Х*-1-0,25/1500/220-380 |
63 |
0,25 |
1500 |
0,79 |
53 |
|
|
ТДРВ 90-60-3,55-Х*-1-1,5/3000/220-380 |
80 |
1,5 |
3000 |
3,46 |
65 |
|
|
ТДРВ 90-60-3,55-Х*-1-2,2/3000/220-380 |
80 |
2,2 |
4,85 |
66 |
||
|
ТДРВ 90-60-4,0-Х*-1-0,37/1500/220-380 |
63 |
0,37 |
1500 |
1,12 |
65 |
|
|
ТДРВ 90-60-4,0-Х*-1-0,55/1500/220-380 |
71 |
0,55 |
1,57 |
74 |
||
|
ТДРВ 90-60-4,0-Х*-1-2,2/3000/220-380 |
80 |
2,2 |
3000 |
4,85 |
78 |
|
|
ТДРВ 90-60-4,0-Х*-1-3,0/3000/220-380 |
90 |
3,0 |
6,34 |
86 |
||
|
ТДРВ 90-60-4,0-Х*-1-4,0/3000/220-380 |
100 |
4,0 |
8,2 |
91 |
||
|
ТДРВ 90-60-4,5-Х*-1-1,1/1500/220-380 |
80 |
1,1 |
1500 |
2,85 |
91 |
|
|
ТДРВ 90-60-4,5-Х*-1-1,5/1500/220-380 |
80 |
1,5 |
3,72 |
94 |
||
|
ТДРВ 90-60-4,5-Х*-1-7,5/3000/220-380 |
112 |
7,5 |
3000 |
14,9 |
126 |
|
|
ТДРВ 90-60-4,5-Х*-1-11,0/3000/380-660 |
132 |
11,0 |
21,2 |
149 |
||
|
ТДРВ 90-60-5,0-Х*-1-1,1/1500/220-380 |
80 |
1,1 |
1500 |
2,85 |
108 |
|
|
ТДРВ 90-60-5,0-Х*-1-1,5/1500/220-380 |
80 |
1,5 |
3,72 |
111 |
||
|
ТДРВ 90-60-5,0-Х*-1-7,5/3000/220-380 |
112 |
7,5 |
3000 |
14,9 |
143 |
|
|
ТДРВ 90-60-5,0-Х*-1-11,0/3000/380-660 |
132 |
11,0 |
21,2 |
166 |
||
|
ТДРВ 90-60-5,6-Х*-1-2,2/1500/220-380 |
90 |
2,2 |
1500 |
5,1 |
142 |
|
|
ТДРВ 90-60-5,6-Х*-1-3,0/1500/220-380 |
100 |
3,0 |
6,8 |
149 |
||
|
ТДРВ 90-60-6,3-Х*-1-1,5/1000/220-380 |
90 |
1,5 |
1000 |
4 |
173 |
|
|
ТДРВ 90-60-6,3-Х*-1-2,2/1000/220-380 |
100 |
2,2 |
5,6 |
182 |
||
|
ТДРВ 90-60-6,3-Х*-1-4,0/1500/220-380 |
100 |
4,0 |
1500 |
8,8 |
184 |
|
|
ТДРВ 90-60-6,3-Х*-1-5,5/1500/220-380 |
112 |
5,5 |
11,7 |
194 |
||
|
ТДРВ 90-60-7,1-Х*-1-3,0/1000/220-380 |
112 |
3,0 |
1000 |
7,4 |
232 |
|
|
ТДРВ 90-60-7,1-Х*-1-4,0/1000/220-380 |
112 |
4,0 |
9,75 |
236 |
||
|
ТДРВ 90-60-7,1-Х*-1-7,5/1500/380-660 |
132 |
7,5 |
1500 |
15,6 |
261 |
|
|
ТДРВ 90-60-7,1-Х*-1-11,0/1500/380-660 |
132 |
11,0 |
22,5 |
273 |
||
|
ТДРВ 90-60-8,0-Х*-1-4,0/1000/220-380 |
112М |
4,0 |
1000 |
9,75 |
287 |
|
|
ТДРВ 90-60-8,0-Х*-1-5,5/1000/380-660 |
132 |
5,5 |
12,9 |
307 |
||
|
ТДРВ 90-60-8,0-Х*-1-15,0/1500/380-660 |
160 |
15,0 |
1500 |
30 |
363 |
|
|
ТДРВ 90-60-8,0-Х*-1-18,5/1500/380-660 |
160 |
18,5 |
36,3 |
383 |
||
|
ТДРВ 90-60-9,0-Х*-1-7,5/1000/380-660 |
132 |
7,5 |
1000 |
17,2 |
386 |
|
|
ТДРВ 90-60-9,0-Х*-1-11,0/1000/380-660 |
160 |
11,0 |
24,5 |
422 |
||
|
ТДРВ 90-60-9,0-Х*-1-30,0/1500/380-660 |
180 |
30,0 |
1500 |
57,6 |
494 |
|
|
ТДРВ 90-60-9,0-Х*-1-37,0/1500/380-660 |
200 |
37,0 |
70,2 |
564 |
||
|
ТДРВ 90-60-10,0-Х*-1-5,5/750/380-660 |
132 |
5,5 |
750 |
13,6 |
452 |
|
|
ТДРВ 90-60-10,0-Х*-1-7,5/750/380-660 |
160 |
7,5 |
17,8 |
491 |
||
|
ТДРВ 90-60-10,0-Х*-1-15,0/1000/380-660 |
160 |
15,0 |
1000 |
31,6 |
522 |
|
|
ТДРВ 90-60-10,0-Х*-1-18,5/1000/380-660 |
180 |
18,5 |
38,6 |
546 |
||
|
ТДРВ 90-60-10,0-Х*-1-45,0/1500/380-660 |
200 |
45,0 |
1500 |
84,9 |
662 |
|
|
ТДРВ 90-60-10,0-Х*-1-55,0/1500/380-660 |
225 |
55,0 |
103 |
712 |
||
|
ТДРВ 90-60-11,2-Х*-1-11,0/750/380-660 |
160 |
11,0 |
750 |
25,5 |
616 |
|
|
ТДРВ 90-60-11,2-Х*-1-15,0/750/380-660 |
180 |
15,0 |
34,1 |
646 |
||
|
ТДРВ 90-60-11,2-Х*-1-22,0/1000/380-660 |
200 |
22,0 |
1000 |
44,7 |
688 |
|
|
ТДРВ 90-60-11,2-Х*-1-30,0/1000/380-660 |
200 |
30,0 |
59,3 |
730 |
||
* В этом месте необходимо указать исполнение вентилятора: О,
Т200, К1, К1Т200, Ex1, ExК1, Ex1Т200, ExК1Т200.
** АИМЛ для вентиляторов во взрывозащищенном исполнении
(Ex1, ExК1, Ex1Т200, ExК1Т200).
Вентиляторы исполнений Ex1, ExК1, Ex1Т200, ExК1Т200 с
двигателем АИМЛ56 (0,12/1500) не изготавливаются.
Технические характеристики ТДРВ 90-60. Исполнение 3
|
Наименование |
Габарит электродвигателей АИР/АИМЛ** |
N, кВт |
n, об/мин |
Ток, А |
Масса, кг |
|
|
двигателя |
колеса |
|||||
|
ТДРВ 90-60-5,6-Х*-3-2,2/1500/220-380 |
90 |
2,2 |
1500 |
5,1 |
207 |
|
|
ТДРВ 90-60-5,6-Х*-3-3,0/1500/220-380 |
100 |
3,0 |
6,8 |
214 |
||
|
ТДРВ 90-60-6,3-Х*-1-1,5/1000/220-380 |
90 |
1,5 |
1000 |
4 |
249 |
|
|
ТДРВ 90-60-6,3-Х*-1-2,2/1000/220-380 |
100 |
2,2 |
5,6 |
257 |
||
|
ТДРВ 90-60-6,3-Х*-1-4,0/1500/220-380 |
100 |
4,0 |
1500 |
8,8 |
260 |
|
|
ТДРВ 90-60-6,3-Х*-1-5,5/1500/220-380 |
112 |
5,5 |
11,7 |
269 |
||
|
ТДРВ 90-60-7,1-Х*-1-3,0/1000/220-380 |
112 |
3,0 |
1000 |
7,4 |
346 |
|
|
ТДРВ 90-60-7,1-Х*-1-4,0/1000/220-380 |
112 |
4,0 |
9,75 |
351 |
||
|
ТДРВ 90-60-7,1-Х*-1-7,5/1500/380-660 |
132 |
7,5 |
1500 |
15,6 |
376 |
|
|
ТДРВ 90-60-7,1-Х*-1-11,0/1500/380-660 |
132 |
11,0 |
22,5 |
388 |
||
|
ТДРВ 90-60-8,0-Х*-1-4,0/1000/220-380 |
112М |
4,0 |
1000 |
9,75 |
418 |
|
|
ТДРВ 90-60-8,0-Х*-1-5,5/1000/380-660 |
132 |
5,5 |
12,9 |
438 |
||
|
ТДРВ 90-60-8,0-Х*-1-15,0/1500/380-660 |
160 |
15,0 |
1500 |
30 |
494 |
|
|
ТДРВ 90-60-8,0-Х*-1-18,5/1500/380-660 |
160 |
18,5 |
36,3 |
514 |
||
|
ТДРВ 90-60-9,0-Х*-1-7,5/1000/380-660 |
132 |
7,5 |
1000 |
17,2 |
538 |
|
|
ТДРВ 90-60-9,0-Х*-1-11,0/1000/380-660 |
160 |
11,0 |
24,5 |
574 |
||
|
ТДРВ 90-60-9,0-Х*-1-30,0/1500/380-660 |
180 |
30,0 |
1500 |
57,6 |
646 |
|
|
ТДРВ 90-60-9,0-Х*-1-37,0/1500/380-660 |
200 |
37,0 |
70,2 |
716 |
||
|
ТДРВ 90-60-10,0-Х*-1-5,5/750/380-660 |
132 |
5,5 |
750 |
13,6 |
627 |
|
|
ТДРВ 90-60-10,0-Х*-1-7,5/750/380-660 |
160 |
7,5 |
17,8 |
666 |
||
|
ТДРВ 90-60-10,0-Х*-1-15,0/1000/380-660 |
160 |
15,0 |
1000 |
31,6 |
697 |
|
|
ТДРВ 90-60-10,0-Х*-1-18,5/1000/380-660 |
180 |
18,5 |
38,6 |
721 |
||
|
ТДРВ 90-60-10,0-Х*-1-45,0/1500/380-660 |
200 |
45,0 |
1500 |
84,9 |
837 |
|
|
ТДРВ 90-60-10,0-Х*-1-55,0/1500/380-660 |
225 |
55,0 |
103 |
887 |
||
|
ТДРВ 90-60-11,2-Х*-1-11,0/750/380-660 |
160 |
11,0 |
750 |
25,5 |
884 |
|
|
ТДРВ 90-60-11,2-Х*-1-15,0/750/380-660 |
180 |
15,0 |
34,1 |
914 |
||
|
ТДРВ 90-60-11,2-Х*-1-22,0/1000/380-660 |
200 |
22,0 |
1000 |
44,7 |
956 |
|
|
ТДРВ 90-60-11,2-Х*-1-30,0/1000/380-660 |
200 |
30,0 |
59,3 |
998 |
||
* В этом месте необходимо указать исполнение вентилятора: О,
Т200, К1, К1Т200, Ex1, ExК1, Ex1Т200, ExК1Т200.
** АИМЛ для вентиляторов во взрывозащищенном
исполнении (Ex1, ExК1, Ex1Т200, ExК1Т200).
Технические характеристики ТДРВ 90-60. Исполнение 5
|
Наименование |
Габарит электродвигателей АИР/АИМЛ** |
N, кВт |
n, об/мин |
Ток, А |
|||
|
двигателя |
колеса |
||||||
|
ТДРВ 90-60-5,6-Х*-5(1667)-2,2/3000/220-380 |
80 |
2,2 |
3000 |
1667 |
4,85 |
||
|
ТДРВ 90-60-5,6-Х*-5(1667)-3,0/3000/220-380 |
90 |
3,0 |
6,34 |
||||
|
ТДРВ 90-60-5,6-Х*-5(1667)-4,0/3000/220-380 |
100 |
4,0 |
8,2 |
||||
|
ТДРВ 90-60-5,6-Х*-5(1875)-3,0/3000/220-380 |
90 |
3,0 |
3000 |
1875 |
6,34 |
||
|
ТДРВ 90-60-5,6-Х*-5(1875)-4,0/3000/220-380 |
100 |
4,0 |
8,2 |
||||
|
ТДРВ 90-60-5,6-Х*-5(1875)-5,5/3000/220-380 |
100 |
5,5 |
11,1 |
||||
|
ТДРВ 90-60-5,6-Х*-5(2143)-5,5/3000/220-380 |
100 |
5,5 |
3000 |
2143 |
11,1 |
||
|
ТДРВ 90-60-5,6-Х*-5(2143)-7,5/3000/220-380 |
112 |
7,5 |
14,9 |
||||
|
ТДРВ 90-60-5,6-Х*-5(2400)-7,5/3000/220-380 |
112 |
7,5 |
3000 |
2400 |
14,9 |
||
|
ТДРВ 90-60-5,6-Х*-5(2400)-11,0/3000/380-660 |
132 |
11,0 |
21,2 |
||||
|
ТДРВ 90-60-5,6-Х*-5(2679)-7,5/3000/220-380 |
112 |
7,5 |
3000 |
2679 |
14,9 |
||
|
ТДРВ 90-60-5,6-Х*-5(2679)-11,0/3000/380-660 |
132 |
11,0 |
21,2 |
||||
|
ТДРВ 90-60-5,6-Х*-5(2679)-15,0/3000/380-660 |
160 |
15,0 |
28,6 |
||||
|
ТДРВ 90-60-6,3-Х*-5(1000)-1,5/1000/220-380 |
90 |
1,5 |
1000 |
4 |
|||
|
ТДРВ 90-60-6,3-Х*-5(1000)-2,2/1000/220-380 |
100 |
2,2 |
5,6 |
||||
|
ТДРВ 90-60-6,3-Х*-5(1071)-1,5/1500/220-380 |
80 |
1,5 |
1500 |
1071 |
3,72 |
||
|
ТДРВ 90-60-6,3-Х*-5(1071)-2,2/1500/220-380 |
90 |
2,2 |
5,1 |
||||
|
ТДРВ 90-60-6,3-Х*-5(1200)-2,2/1500/220-380 |
90 |
2,2 |
1500 |
1200 |
5,1 |
||
|
ТДРВ 90-60-6,3-Х*-5(1200)-3,0/1500/220-380 |
100 |
3,0 |
6,8 |
||||
|
ТДРВ 90-60-6,3-Х*-5(1339)-3,0/1500/220-380 |
100 |
3,0 |
1500 |
1339 |
6,8 |
||
|
ТДРВ 90-60-6,3-Х*-5(1339)-4,0/1500/220-380 |
100 |
4,0 |
8,8 |
||||
|
ТДРВ 90-60-6,3-Х*-5(1500)-4,0/1500/220-380 |
100 |
4,0 |
1500 |
8,8 |
|||
|
ТДРВ 90-60-6,3-Х*-5(1500)-5,5/1500/220-380 |
112 |
5,5 |
11,7 |
||||
|
ТДРВ 90-60-6,3-Х*-5(1667)-5,5/3000/220-380 |
100 |
5,5 |
3000 |
1667 |
11,1 |
||
|
ТДРВ 90-60-6,3-Х*-5(1667)-7,5/3000/220-380 |
112 |
7,5 |
14,9 |
||||
|
ТДРВ 90-60-6,3-Х*-5(1875)-7,5/3000/220-380 |
112 |
7,5 |
3000 |
1875 |
14,9 |
||
|
ТДРВ 90-60-6,3-Х*-5(1875)-11,0/3000/380-660 |
132 |
11,0 |
21,2 |
||||
|
ТДРВ 90-60-6,3-Х*-5(2143)-11,0/3000/380-660 |
132 |
11,0 |
3000 |
2143 |
21,2 |
||
|
ТДРВ 90-60-6,3-Х*-5(2143)-15,0/3000/380-660 |
160 |
15,0 |
28,6 |
||||
|
ТДРВ 90-60-6,3-Х*-5(2400)-15,0/3000/380-660 |
160 |
15,0 |
3000 |
2400 |
28,6 |
||
|
ТДРВ 90-60-6,3-Х*-5(2400)-18,5/3000/380-660 |
160 |
18,5 |
34,7 |
||||
|
ТДРВ 90-60-6,3-Х*-5(2400)-22,0/3000/380-660 |
180 |
22,0 |
41 |
||||
|
ТДРВ 90-60-7,1-Х*-5(1000)-3,0/1000/220-380 |
112 |
3,0 |
1000 |
7,4 |
|||
|
ТДРВ 90-60-7,1-Х*-5(1000)-4,0/1000/220-380 |
112 |
4,0 |
9,75 |
||||
|
ТДРВ 90-60-7,1-Х*-5(1071)-3,0/1500/220-380 |
100 |
3,0 |
1500 |
1071 |
6,8 |
||
|
ТДРВ 90-60-7,1-Х*-5(1071)-4,0/1500/220-380 |
100 |
4,0 |
8,8 |
||||
|
ТДРВ 90-60-7,1-Х*-5(1200)-4,0/1500/220-380 |
100 |
4,0 |
1500 |
1200 |
8,8 |
||
|
ТДРВ 90-60-7,1-Х*-5(1200)-5,5/1500/220-380 |
112 |
5,5 |
11,7 |
||||
|
ТДРВ 90-60-7,1-Х*-5(1339)-5,5/1500/220-380 |
112 |
5,5 |
1500 |
1339 |
11,7 |
||
|
ТДРВ 90-60-7,1-Х*-5(1339)-7,5/1500/380-660 |
132 |
7,5 |
15,6 |
||||
|
ТДРВ 90-60-7,1-Х*-5(1500)-7,5/1500/380-660 |
132 |
7,5 |
1500 |
15,6 |
|||
|
ТДРВ 90-60-7,1-Х*-5(1500)-11,0/1500/380-660 |
132 |
11,0 |
22,5 |
||||
|
ТДРВ 90-60-7,1-Х*-5(1667)-11,0/3000/380-660 |
132 |
11,0 |
3000 |
1667 |
22,5 |
||
|
ТДРВ 90-60-7,1-Х*-5(1667)-15,0/3000/380-660 |
160 |
15,0 |
30 |
||||
|
ТДРВ 90-60-7,1-Х*-5(1875)-15,0/3000/380-660 |
160 |
15,0 |
3000 |
1875 |
30 |
||
|
ТДРВ 90-60-7,1-Х*-5(1875)-18,5/3000/380-660 |
160 |
18,5 |
36,3 |
||||
|
ТДРВ 90-60-7,1-Х*-5(2143)-22,0/3000/380-660 |
180 |
22,0 |
3000 |
2143 |
43,2 |
||
|
ТДРВ 90-60-7,1-Х*-5(2143)-30,0/3000/380-660 |
180 |
30,0 |
57,6 |
||||
|
ТДРВ 90-60-8,0-Х*-5(1000)-4,0/1000/220-380 |
112 |
4,0 |
1000 |
9,75 |
|||
|
ТДРВ 90-60-8,0-Х*-5(1000)-5,5/1000/380-660 |
132 |
5,5 |
12,9 |
||||
|
ТДРВ 90-60-8,0-Х*-5(1071)-5,5/1500/220-380 |
112 |
5,5 |
1500 |
1071 |
11,7 |
||
|
ТДРВ 90-60-8,0-Х*-5(1071)-7,5/1500/380-660 |
132 |
7,5 |
15,6 |
||||
|
ТДРВ 90-60-8,0-Х*-5(1200)-7,5/1500/380-660 |
132 |
7,5 |
1500 |
1200 |
15,6 |
||
|
ТДРВ 90-60-8,0-Х*-5(1200)-11,0/1500/380-660 |
132 |
11,0 |
22,5 |
||||
|
ТДРВ 90-60-8,0-Х*-5(1339)-11,0/1500/380-660 |
132 |
11,0 |
1500 |
1339 |
22,5 |
||
|
ТДРВ 90-60-8,0-Х*-5(1339)-15,0/1500/380-660 |
160 |
15,0 |
30 |
||||
|
ТДРВ 90-60-8,0-Х*-5(1500)-15,0/1500/380-660 |
160 |
15,0 |
1500 |
30 |
|||
|
ТДРВ 90-60-8,0-Х*-5(1500)-18,5/1500/380-660 |
160 |
18,5 |
36,3 |
||||
|
ТДРВ 90-60-8,0-Х*-5(1680)-18,5/1500/380-660 |
160 |
18,5 |
1500 |
1680 |
36,3 |
||
|
ТДРВ 90-60-8,0-Х*-5(1680)-22,0/1500/380-660 |
180 |
22,0 |
43,2 |
||||
|
ТДРВ 90-60-8,0-Х*-5(1875)-30,0/1500/380-660 |
180 |
30,0 |
1500 |
1875 |
57,6 |
||
|
ТДРВ 90-60-8,0-Х*-5(1875)-37,0/1500/380-660 |
200 |
37,0 |
70,2 |
||||
|
ТДРВ 90-60-9,0-Х*-5(1000)-7,5/1000/380-660 |
132 |
7,5 |
1000 |
17,2 |
|||
|
ТДРВ 90-60-9,0-Х*-5(1000)-11,0/1000/380-660 |
160 |
11,0 |
24,5 |
||||
|
ТДРВ 90-60-9,0-Х*-5(1071)-11,0/1500/380-660 |
132 |
11,0 |
1500 |
1071 |
22,5 |
||
|
ТДРВ 90-60-9,0-Х*-5(1071)-15,0/1500/380-660 |
160 |
15,0 |
30 |
||||
|
ТДРВ 90-60-9,0-Х*-5(1200)-15,0/1500/380-660 |
160 |
15,0 |
1500 |
1200 |
30 |
||
|
ТДРВ 90-60-9,0-Х*-5(1200)-18,5/1500/380-660 |
160 |
18,5 |
36,3 |
||||
|
ТДРВ 90-60-9,0-Х*-5(1339)-18,5/1500/380-660 |
160 |
18,5 |
1500 |
1339 |
36,3 |
||
|
ТДРВ 90-60-9,0-Х*-5(1339)-22,0/1500/380-660 |
180 |
22,0 |
43,2 |
||||
|
ТДРВ 90-60-9,0-Х*-5(1500)-30,0/1500/380-660 |
180 |
30,0 |
1500 |
57,6 |
|||
|
ТДРВ 90-60-9,0-Х*-5(1500)-37,0/1500/380-660 |
200 |
37,0 |
70,2 |
||||
|
ТДРВ 90-60-9,0-Х*-5(1680)-37,0/1500/380-660 |
200 |
37,0 |
1500 |
1680 |
70,2 |
||
|
ТДРВ 90-60-9,0-Х*-5(1680)-45,0/1500/380-660 |
200 |
45,0 |
84,9 |
||||
|
ТДРВ 90-60-10,0-Х*-5(750)-5,5/750/380-660 |
132 |
5,5 |
750 |
13,6 |
|||
|
ТДРВ 90-60-10,0-Х*-5(750)-7,5/750/380-660 |
160 |
7,5 |
17,8 |
||||
|
ТДРВ 90-60-10,0-Х*-5(800)-7,5/1000/380-660 |
132 |
7,5 |
1000 |
800 |
17,2 |
||
|
ТДРВ 90-60-10,0-Х*-5(800)-11,0/1000/380-660 |
160 |
11,0 |
24,5 |
||||
|
ТДРВ 90-60-10,0-Х*-5(893)-11,0/1000/380-660 |
160 |
11,0 |
1000 |
893 |
24,5 |
||
|
ТДРВ 90-60-10,0-Х*-5(893)-15,0/1000/380-660 |
160 |
15,0 |
31,6 |
||||
|
ТДРВ 90-60-10,0-Х*-5(1000)-15,0/1000/380-660 |
160 |
15,0 |
1000 |
31,6 |
|||
|
ТДРВ 90-60-10,0-Х*-5(1000)-18,5/1000/380-660 |
180 |
18,5 |
38,6 |
||||
|
ТДРВ 90-60-10,0-Х*-5(1071)-18,5/1500/380-660 |
160 |
18,5 |
1500 |
1071 |
36,3 |
||
|
ТДРВ 90-60-10,0-Х*-5(1071)-22,0/1500/380-660 |
180 |
22,0 |
43,2 |
||||
|
ТДРВ 90-60-10,0-Х*-5(1200)-22,0/1500/380-660 |
180 |
22,0 |
1500 |
1200 |
43,2 |
||
|
ТДРВ 90-60-10,0-Х*-5(1200)-30,0/1500/380-660 |
180 |
30,0 |
57,6 |
||||
|
ТДРВ 90-60-10,0-Х*-5(1339)-30,0/1500/380-660 |
180 |
30,0 |
1500 |
1339 |
57,6 |
||
|
ТДРВ 90-60-10,0-Х*-5(1339)-37,0/1500/380-660 |
200 |
37,0 |
70,2 |
||||
|
ТДРВ 90-60-10,0-Х*-5(1500)-45,0/1500/380-660 |
200 |
45,0 |
1500 |
84,9 |
|||
|
ТДРВ 90-60-10,0-Х*-5(1500)-55,0/1500/380-660 |
225 |
55,0 |
103 |
||||
|
ТДРВ 90-60-11,2-Х*-5(750)-11,0/750/380-660 |
160 |
11,0 |
750 |
25,5 |
|
||
|
ТДРВ 90-60-11,2-Х*-5(750)-15,0/750/380-660 |
180 |
15,0 |
34,1 |
|
|||
|
ТДРВ 90-60-11,2-Х*-5(800)-11,0/1000/380-660 |
160 |
11,0 |
1000 |
800 |
24,5 |
|
|
|
ТДРВ 90-60-11,2-Х*-5(800)-15,0/1000/380-660 |
160 |
15,0 |
31,6 |
|
|||
|
ТДРВ 90-60-11,2-Х*-5(800)-18,5/1000/380-660 |
180 |
18,5 |
38,6 |
|
|||
|
ТДРВ 90-60-11,2-Х*-5(893)-15,0/1000/380-660 |
160 |
15,0 |
1000 |
893 |
31,6 |
|
|
|
ТДРВ 90-60-11,2-Х*-5(893)-18,5/1000/380-660 |
180 |
18,5 |
38,6 |
|
|||
|
ТДРВ 90-60-11,2-Х*-5(893)-22,0/1000/380-660 |
200 |
22,0 |
44,7 |
|
|||
|
ТДРВ 90-60-11,2-Х*-5(1000)-22,0/1000/380-660 |
200 |
22,0 |
1000 |
44,7 |
|
||
|
ТДРВ 90-60-11,2-Х*-5(1000)-30,0/1000/380-660 |
200 |
30,0 |
59,3 |
|
|||
|
ТДРВ 90-60-11,2-Х*-5(1071)-30,0/1500/380-660 |
180 |
30,0 |
1500 |
1071 |
57,6 |
|
|
|
ТДРВ 90-60-11,2-Х*-5(1071)-37,0/1500/380-660 |
200 |
37,0 |
70,2 |
|
|||
|
ТДРВ 90-60-11,2-Х*-5(1200)-37,0/1500/380-660 |
200 |
37,0 |
1500 |
1200 |
70,2 |
|
|
|
ТДРВ 90-60-11,2-Х*-5(1200)-45,0/1500/380-660 |
200 |
45,0 |
84,9 |
|
|||
|
ТДРВ 90-60-11,2-Х*-5(1339)-55,0/1500/380-660 |
225 |
55,0 |
1500 |
1339 |
103 |
|
|
|
ТДРВ 90-60-11,2-Х*-5(1339)-75,0/1500/380-660 |
250 |
75,0 |
138,3 |
|
|||
* В этом месте необходимо указать исполнение вентилятора: О,
Т200, К1, К1Т200, Ex1, ExК1, Ex1Т200, ExК1Т200.
** АИМЛ для вентиляторов во взрывозащищенном
исполнении (Ex1, ExК1, Ex1Т200, ExК1Т200).
Электрические
схемы подключения вентиляторов в сеть 380 В

* В вентиляторах с номинальным напряжением ∆/Y 380В/660В
предусмотрена возможность запуска пониженным напряжением по схеме Y-∆.
Рекомендуемая схема подключения зависит от исполнения
двигателя. Для получения более подробной информации по подключению, обратитесь
в отдел технической поддержки.
Не представленные в наличии модели доступны к поставке под заказ
Оповестить о поступлении
Всю необходимую информацию также можно получить по телефону «горячей линии»
+ 7 800 200 93 96или по телефону
+7 800 505 08 67 получить консультацию
