Каталог товаров

Вставка гибкая для вентиляторов ВРП 140-40

СДЕЛАНО В РОВЕН
ТОВАР СЕРТИФИЦИРОВАН
Описание товара
Характеристики моделей
Купить

Вставки гибкие круглые и прямоугольные предназначены для предотвращения передачи вибрации от вентилятора к воздуховоду и применяются в вентиляционных системах, перемещающих воздух в интервалах температур от -45°С до +200°С, в зависимости от исполнения и типа вентилятора.
Корпус гибкой вставки в зависимости от исполнения может быть выполнен как из оцинкованной так и из нержавеющей стали, а лента обеспечивающая герметичность канала - из теплостойкого материала.
Особенностью гибкой вставки для вентиляторов ВРП 140-40 является наличие металлической проставки, которая надежно защищает гибкий элемент от повреждений.

Габаритные и присоединительные размеры вставок гибких круглых

ВГК-ВРП.jpg

№ вент.

Модель гибкой вставки

D

D1

H

Размер фланцев

К1; ExК1 К1Т200

О; Т200; Ex; ExТ200

Полоса

Лист

2,5

ВГК-ВРП-2,5

150

185

151

224

-

3

2,8

ВГК-ВРП-2,8

170

205

-

3

3,15

ВГК-ВРП-3,15

190

225

25

-

3,55

ВГК-ВРП-3,55

219

254

25

-

4,0

ВГК-ВРП-4,0

245

280

25

-

4,5

ВГК-ВРП-4,5

285

320

25

-

5,0

ВГК-ВРП-5,0

320

355

25

-

5,6

ВГК-ВРП-5,6

360

395

25

-

6,3

ВГК-ВРП-6,3

415

450

25

-

7,1

ВГК-ВРП-7,1

465

500

25

-

8,0

ВГК-ВРП-8,0

525

560

25

-

Маркировка:
Вставка гибкая ВГК-ВРП-2,5-Ф/Ф-О
                                          где: ВГК-ВРП – вставка гибкая круглая для радиальных вентиляторов ВРП 140-40;
                                                 2,5 – типоразмер вставки гибкой круглой (номер вентилятора);
                                                 Ф/Ф – тип соединения вставки гибкой круглой: Ф/Ф – фланец-фланец;
                                                 О – исполнение вставки гибкой круглой:
                                                       О – общепромышленное; Т200 – теплостойкое; К1 – коррозионностойкое;
                                                       К1Т200 – коррозионностойкое теплостойкое; Ex – взрывозащищенное;
                                                       ExТ200 – взрывозащищенное теплостойкое;
                                                       ExК1 – взрывозащищенное коррозионностойкое.

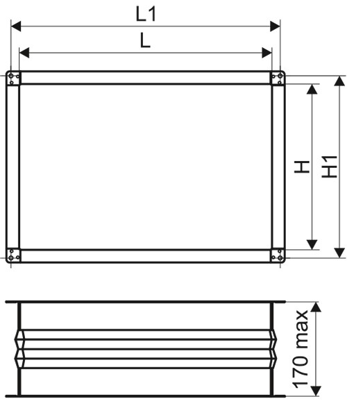
Габаритные и присоединительные размеры вставок гибких прямоугольных

ВГП-ВРП.jpg

№ вент

Модель гибкой вставки

L

H

L1

H1

Размер фланца из шины

2,5

ВГП-ВРП-2,5

195

169

214

188

20

2,8

ВГП-ВРП-2,8

215

187

234

206

20

3,15

ВГП-ВРП-3,15

241

207

260

226

20

3,55

ВГП-ВРП-3,55

269

233

288

252

20

4,0

ВГП-ВРП-4,0

299

260

318

279

20

4,5

ВГП-ВРП-4,5

335

290

354

309

20

5,0

ВГП-ВРП-5,0

368

320

387

339

20

5,6

ВГП-ВРП-5,6

410

356

429

375

20

6,3

ВГП-ВРП-6,3

461

397

480

416

20

7,1

ВГП-ВРП-7,1

531

461

560

490

30

8,0

ВГП-ВРП-8,0

596

516

625

545

30

Маркировка:
Вставка гибкая ВГП-ВРП-2,5-Ш/Ш-Т200
                                         где: ВГП-ВРП – вставка гибкая прямоугольная для радиальных вентиляторов ВРП 140-40;
                                                 2,5 – типоразмер вставки гибкой прямоугольной (номер вентилятора);
                                                 Ш/Ш – тип соединения вставки гибкой прямоугольной: Ш/Ш - шина-шина;
                                                 Т200 – исполнение вставки гибкой круглой:
                                                       О – общепромышленное; Т200 – теплостойкое; К1 – коррозионностойкое;
                                                       К1Т200 – коррозионностойкое теплостойкое; Ex – взрывозащищенное;
                                                       ExТ200 – взрывозащищенное теплостойкое;
                                                       ExК1 – взрывозащищенное коррозионностойкое.


Не представленные в наличии модели доступны к поставке под заказ

Оповестить о поступлении

Спасибо за обращение!
Наш менеджер свяжется с вами.

Всю необходимую информацию также можно получить по телефону «горячей линии»

+ 7 800 200 93 96

или по телефону

+7 800 505 08 67 получить консультацию