Каталог товаров

Дренажный поддон ДП-СОМ

Дренажный поддон ДП-СОМ предназначен для сбора и удаления конденсата.
СДЕЛАНО В РОВЕН
Описание товара
Характеристики моделей
Купить

Дренажный поддон ДП-СОМ предназначен для сбора и удаления конденсата. 
Поддон крепится к стакану опорному монтажному СОМ до установки крышного вентилятора. Крепление поддона осуществляется четырьмя специальными болтами.
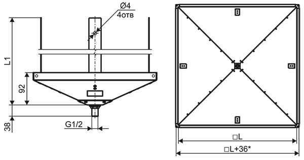
Для отвода конденсата в нижней части днища предусмотрен штуцер, к которому может быть присоединена дренажная труба.  

Габаритные и присоединительные размеры (мм) 

ДП-СОМ_чертеж.jpg

* Только для моделей с 1090 по 1370.

Модель дренажного поддона

L

L1

Масса, кг

Модель стакана опорного монтажного СОМ

355

405

1515

3.8

СОМ-3,55

400

450

1517

4.0

СОМ-4,0

450

500

1518

4.3

СОМ-4,5

500

550

1519

4.6

СОМ-5,0

560

610

1520

7.0

СОМ-5,6

630

680

1521

8.0

СОМ-6,3

710

760

1522

9.2

СОМ-7,1

880

930

1523

12.2

СОМ-8,0

900

950

1523

12.6

СОМ-9,0

1090

1140

1524

22.0

СОМ-10,0

1120

1170

1524

22.9

СОМ-11,2

1370

1420

1525

31.5

СОМ-12,5

ДП-СОМ_маркировка.jpg

Не представленные в наличии модели доступны к поставке под заказ

Оповестить о поступлении

Спасибо за обращение!
Наш менеджер свяжется с вами.

Всю необходимую информацию также можно получить по телефону «горячей линии»

+ 7 800 200 93 96

или по телефону

+7 800 505 08 67 получить консультацию